Уютный коттедж 180 м2 для небольшой семьи со своей территорией

Стоимость
от 25 млн ₽
Площадь
180 м²
2
этажа
4
спальни
+ гостиная
1
Что вы получаете покупая коттедж
2
парковочных места
большая
столовая-гостиная
Ваш новый дом
Современные дома, имеют ярко-выраженный архитектурный образ. Коттедж состоит из органично сплетенных блоков, которые подчеркнуты современной и экологичной отделкой.
Коттедж, 180 м²
от 25 000 000 р.
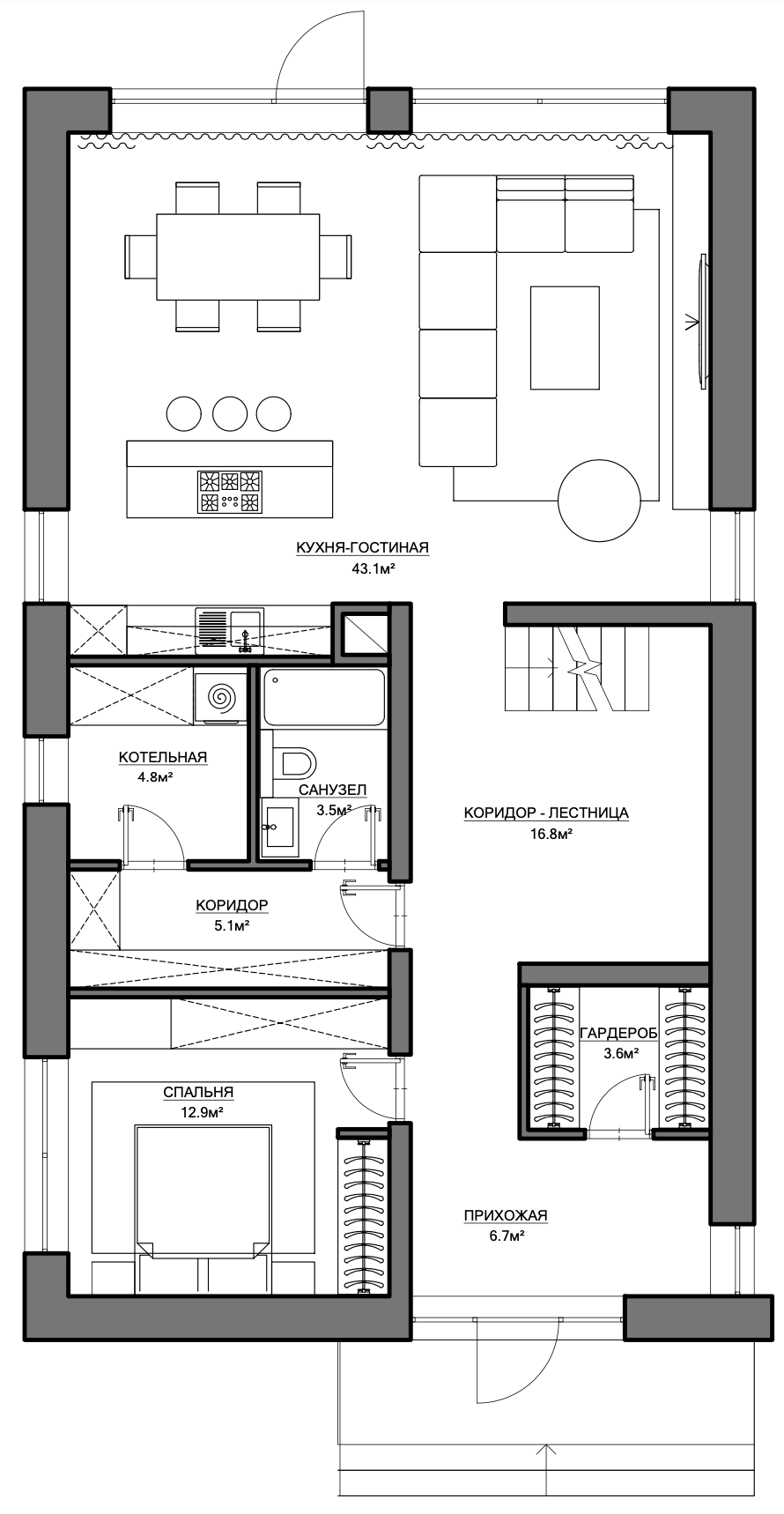
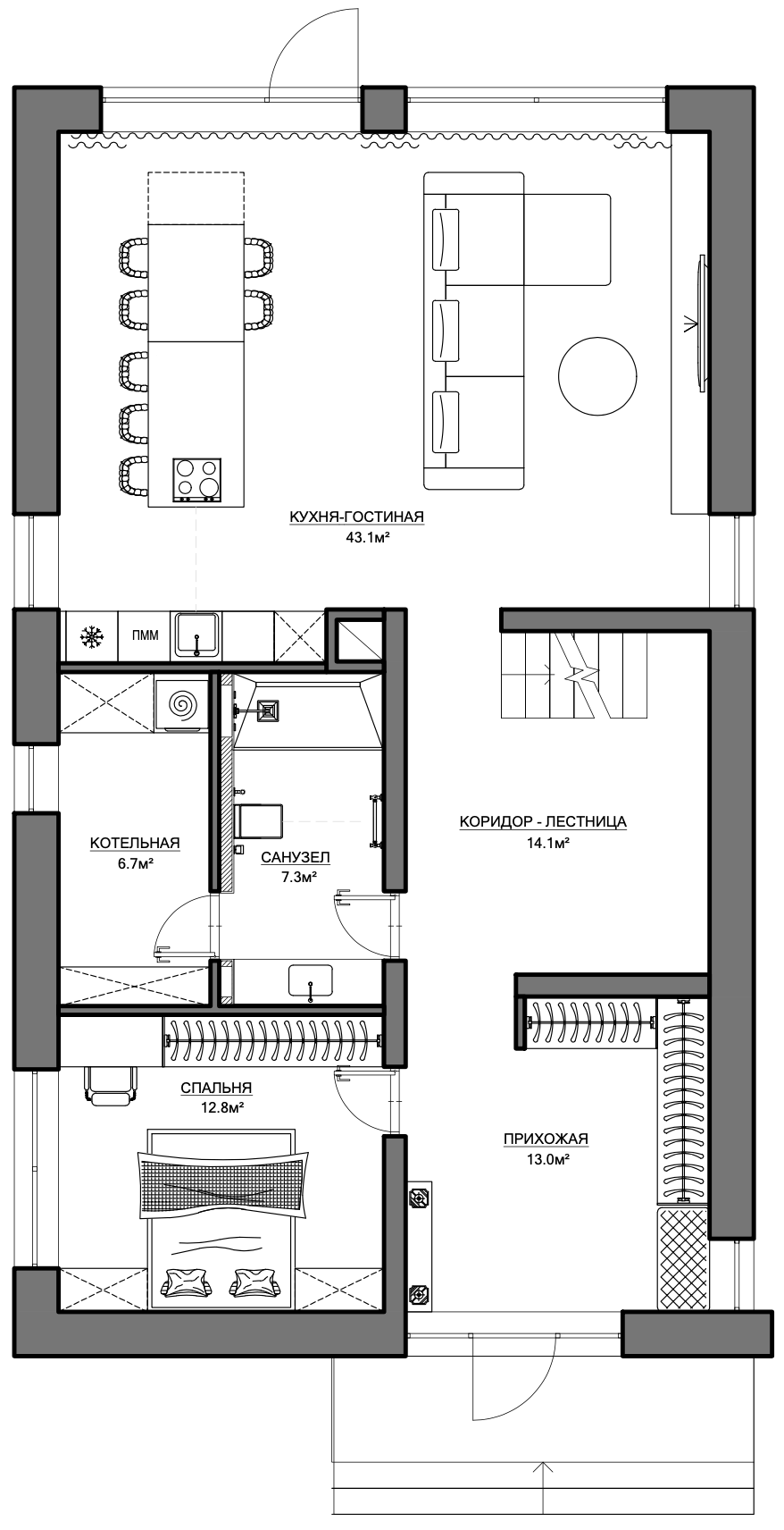
Планировка
Кухня-гостиная

Котельная

Санузел

Коридор

Холл

Гардероб

Прихожая

Спальня

96,5 м²
2 комнаты
Площадь
Количество комнат
Панорамные в пол
Окна
43,1

4,8

3,5

5,1

16,8

3,6

6,7

12,9
Кухня-гостиная

Котельная

Санузел

Коридор

Спальня

Прихожая
97,0 м²
2 комнаты
Площадь
Количество комнат
Панорамные в пол
Окна
43,1

6,7

7,3

14,1

12,8

13,0
Кухня-гостиная

Котельная

Санузел

Санузел

Коридор

Гардероб

Прихожая

Кабинет

94,5 м²
2 комнаты
Площадь
Количество комнат
Панорамные в пол
Окна
43,1

4,6

7,0

2,2

5,5

6,8

12,7

12,8
Спальня

Гардероб

Санузел

Коридор

Ванная

Санузел

Спальня

Спальня
91,9 м²
3 комнаты
Площадь
Количество комнат
Большие окна
Окна
25,2

8,0

7,2

8,5

6,7

1,8

17,8

16,7
Детская

Детская

Прачечная

Ванная

Санузел

Спальня

Гардероб

Кабинет
91,5 м²
3 комнаты
Площадь
Количество комнат
Большие окна
Окна
20,6

13,5

3,7

6,9

6,0

15,9

7,5

8,8
Спальня

Гардероб

Санузел

Коридор

Санузел

Гардероб

Кабинет

Спальня
89,2 м²
3 комнаты
Площадь
Количество комнат
Большие окна
Окна
22,7

7,6

9,8

6,2

10,3

5,5

10,0

17,1
Экстерьер коттеджа
Панорамное остекление
Крупноформатные окна высотой 3 метра и шириной 2 метра: максимум света, солнца и воздуха в вашем доме.
Премиальная отделка
Фиброцементные панели и облицовочный кирпич являются экологически чистым и долговечным материалом.
Надёжные материалы
Мы используем только качественные и проверенные материалы. Все дома строятся в соответствии с проектом.
Из чего сделан дом — конструктив дома
Коттедж состоит из органично сплетенных блоков, которые подчеркнуты современной и экологичной отделкой.
Плоская кровля это надёжно?
Использование покрытия кровли на основе битумных рулонных материалов обеспечивает максимальную долговечность и надежность. Недаром аналогичная кровля используется на высотных многоквартирных домах. При условии регулярного обслуживания сроки службы покрытия могут достигать 40-50 лет без капитального ремонта.
Какие в доме перекрытия?
Перекрытия – выполнены, в основном из сборных железобетонных плит. На настоящее время это, пожалуй, самое надежное техническое решение. Ведь сборные плиты изготавливаются на заводах, в соответствии с утвержденными стандартами, проходят выходной контроль качества.
Из чего сделаны стены?
Стены выполнены из Porotherm 51, который применяется для строительства зданий с несущими стенами до 8 этажей без дополнительного усиления кладки.

Стена, толщиной 510 мм, не требует дополнительного утепления. Высокий уровень звукоизоляции обеспечивает защиту от шума с улицы.

Стены из блоков Porotherm 51 – это оптимальное решение для комфортного проживания, которое обеспечит отличный микроклимат и энергоэффективность в доме.
Какой фундамент используется?
Фундамент – свайно-ростверковый. Основное достоинство данного типа фундамента с точки зрения эксплуатации – это минимальные размеры песчаной подушки, расположенной под зданием (по этому параметру данный фундамент вне конкуренции). Почему это важно: в условиях Московского региона осенью и весной по поверхности земли идет сильный поток грунтовых вод, образовавшихся соответственно при осенних дождях и таянии снега. Чем больше объем песчаной подушки (например, под плитным фундаментом ее объем может достигать 150-200 кубических метров), тем больше воды в ней останется. Это почти неизбежно приводит к необходимости устройства дренажа – сложной и дорогой системы, требующей для надежной работы регулярного обслуживания.
Обзор дома днём и ночью
Дизайны интерьера
    Подключили центральные коммуникации
    Электричество
    Магистральный газ
    Канализация
    Водопровод
    заводится в дом
    заводится в дом
    подводится к дому
    заводится в дом
    от 25 млн. ₽
    от 6 соток
    Понравился коттедж?
    Закажите просмотр